
Architects: Studio Metrocubo
Location: Novigrad, Croatia
Area: 443.0 sqm
Year: 2014
Photographs: Jan Stojkovic
Project Team: Zeljko Mohorovic, Ana Grbac, Iva Buljan
Collaborators: Ivana Mohorovic
Structural Engineering: Proing d.o.o.
Electrical Engineering: SPI d.o.o.
Mechanical Installations: Izoterma d.o.o.
Pool Systems: Marana d.o.o.
Fire Protection: Ing.Labos. d.o.o.

From the architect. House Sperone is located in the old town of Novigrad (Croatia) , within the medieval city walls, on the coast of the Adriatic sea. At this location there was a disco club Sperone which was completely removed, and throughout history it was also known as the city’s wine cellars. The desire of the owner was to build a luxurious 5 star holiday home at extremely attractive location. House has 4 bedrooms, living area, wellness and indoor swimming pool, and can meet the needs of the most discerning guests.

The volume of the house is fully defined by the surrounding buildings: on the east and south side with the old city walls, from the west with city garden and the beach and on the north side with neighboring houses. The outer edge of the house follows the border of the building plot to maximize the use of its limited surface.

The basic concept of the house arises from the desire for valorization of the location context so the new architecture is put in the background to the existing architectural heritage, further highlighted in all its parts. This created a symbiosis of past and present, stone walls with striking crenulations (merlatura) at the top mixed with contemporary residential functions inside the house.

Stone façade on the west side is an extension of an existing segment of the stone wall. South façade, where there is a break in the city walls, is completely enveloped in a glass membrane which creates a dialogue between interior and exterior. Flat roof follows the line of the old city walls and the crenulations. The northern part of the house is completely closed and connected with the neighboring building.

The architects goal was to create a series of visual experiences generated by the sea and medieval stone walls so all major facilities are oriented towards them. The stone walls have served as the perfect backdrop where day and night light plays.

All rooms in the house have visual contact with the sea and / or walls, which results in a unique and sophisticated atmosphere.

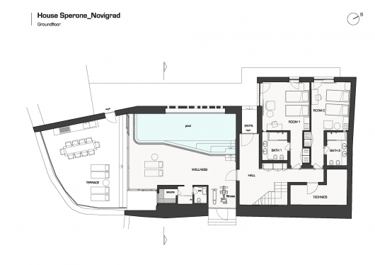
The ground floor has a spacious spa area with indoor pool, sauna and gym. Sliding floor to ceiling glass windows can be completely open for access to the lower terrace with summer kitchen and sun deck. Infinity pool gives the impression of merging with the sea. Even the sauna has a sea view window to make guests even more relaxed looking at the blue water. Rear, quieter part of the house on the ground floor contains two bedrooms and engine room.

Stairs that connect the two floors are located right next to the old stone wall. Special attention was paid to preserve the walls and avoid any structural compounds. Therefore, the impression is that the staircase is hovering alongside the walls.

Upper floor, for the most part, contains daily spaces – living room, kitchen and dining area incorporated in a whole. Its elegant structure allows uninterrupted views of the sea and the stone walls all over the living area. In front of the living area there is a large terrace directly connected to the interior with sliding glass walls. Terrace as outdoor living room becomes an integral part of the interior. From three sides terrace can be closed with automated shades that besides protection from the sun provide an additional sense of intimacy.

Master bedroom is located on the first floor and has an open bathroom with free-standing bathtub, separate shower room and restroom. Its volume is partially shifted from the living area to enable the unobstructed sea view. First floor also contains a fourth bedroom with a view of the crenulations (merlatura)which illuminated in the evening create beautiful scenery.

One of the most attractive parts of the house is a rooftop terrace with spectacular view of the sea and the roofs of the old town of Novigrad offering the possibility for contemplation and enjoyment.

The interior is designed using natural materials and neutral earth tones to create warm atmosphere, while the furniture lines are very clean and modern. A large part of the furniture is custom made and the rest are pieces from well-known brands like Moooi, Poliform, Gervasoni, Vitra, Artemide…
House Sperone / Studio Metrocubo originally appeared on ArchDaily, the most visited architecture website on 20 May 2015.
send to Twitter | Share on Facebook | What do you think about this?




No comments:
Post a Comment