
Architects: E2A
Location: Zurich, Switzerland
Year: 2014
Photographs: Courtesy of E2A, Jan Bitter, Georg Aerni
Design Team: Wim Eckert, Piet Eckert with Nils Döring and Anna Maria Tosi, Sabine Bayer, Samuel Benz, Daniel Bock, Vesna Brandestini, Carolin Döpfer, Christian Dürr, Cristina Gonzalo Nogués, Bryan Graf, Philipp Heidemann, Harris Iliadis, Aidan Kümmerli, Valentino Sandri, Mireya Sanchez Gomez, Alexander Struck
Artistic Collaboration: Hans-Peter Kistler, Beinwil
General Contractor: Allreal Generalunternehmung AG, Zurich
Structural Engineering: JägerPartner AG Bauingenieure SIA, Zurich
Landscape Consulting: Schmid Landschaftsarchitekten GmbH, Zurich
Façade Engineering: Atelier P3 AG, Zurich
Building Physics: Buri Bauphysik & Akustik, Volketswil
Mep: Troxler & Partner AG, Ruswil

From the architect. Terraced housing refers to the countless suburban proposals seeking to maximize views with their slopes. Surprisingly, these proposals are often far removed from an uncompromising belief in the city. They line the outskirts of urban configurations, jostling to assert themselves. In our cities, views and panoramas are not part of an urban agenda.

Our “dream metropolis” is and will remain part of the small-city typology. As a result, we possess no metropolitan inheritance, no local references on which to lean.

It seems that an exhaustion of the periphery must occur in order to reach the point when the city center will attempt to develop and construct truly urban typologies. We transport the terrace from the periphery back into the city. We stack them into a large urban residence.

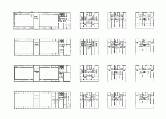
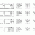
The tower merges with the existing, original warehouse that stands on the edge of the Escher-Wyss industrial area, abandoned and hidden – a situation unusual to Zurich. Rehearsal stages for the opera house will be integrated with the existing buildings to create a link with the surrounding industrial production, still active today.

The new construction absorbs the existing, infusing it with a porous materiality. It fills the old arched windows from the inside, and as such is converted into a new whole. By weaving the existing industrial elements with the residential tower, the building engages with an unusual urban situation, standing slightly offset from the street.

The profile of the building develops conically. From the upper edge of the existing structure, with a depth of 25 meters, the new apartments of 8 meter modules stack continuously upwards. A south-facing tribune rises to a height of 60 meters and reveals an expansive view over the city center and Lake Zurich.









Escher Terraces High-Rise Apartments / E2A originally appeared on ArchDaily, the most visited architecture website on 20 May 2015.
send to Twitter | Share on Facebook | What do you think about this?
No comments:
Post a Comment